龙川府*意式极简风格| 2022别墅设计大赛作品鉴赏

家装设计是让空间与自然交互,创领一种融入自然的诗意栖居。鲁班2022别墅设计大赛秉承对设计的追求,坚持创新、匠心营造,成熟中寻求突破,创新中追求落地,从心出发,用设计致敬生活的未来。
本案是来自鲁班摩橙首席设计师杜凯华的设计作品《衍·界》,是一套位于昆明龙川府213平的中叠户型,是拥有温度的意式极简风格的别致作品。接下来,我们一起去走进这套别具匠心的住宅吧!
设计师介绍

设计说明
本案让极简并不是一味地只做“减法”,而是在产品体验以及舒适性上一定要做“加法”,保证能够为人们提供更为舒适的感受。整体呈黑白灰色调,整体空间线条干净利落,体现出现代简约生活的品质感。
材质上棉麻,皮质,石材和木饰面等材质融合在一起,让空间协调又富有层次。暖咖色画龙点睛,增添层次感,提升氛围感,调节气氛的同时也展现出时尚品位。
采用意式极简设计,将产品功能性以及质感材质融入到产品之中,创造出一种有温度的极简生活。
平面户型图分析
一层

一层原始平面图
改造前:
1.入户过道偏长,占用太多空间。
2.厨房闭塞,使用面积小,进光量不足。
3.空间比例不均,使用率不高

一层改造平面图
改造后:
1. 区域空间延伸,入户过道缩短。
2. 厨房餐厅相连,变为开放式厨房,增加使用面积借餐厅光引进,有效采光。
3. 空间合理规划,功能分区 ,一个空间内多功能融合。
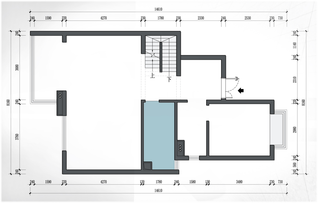
二层

二层原始平面图
改造前:
1.空间零碎,区域划分不明确。
2.刚需功能空间不足。

二层改造平面图
改造后:
1. 空间区域有效划分,空间独立。
2. 增设收纳柜、多功能区,增加刚需使用空间。
3. 动静分区。卧室在左侧,活动功能区在右侧,两边互不干扰。
效果图鉴赏
客厅

客厅是家中交流较多的地方,也是招待客人的地方,所以在设计上要具有居家的舒适性和视觉上的时尚性。

色彩搭配上体现了意式极简黑白灰设计的简约时尚高级感。灰色地毯和无主灯加局部灯设计,让顶部看起来整洁清爽,视野格外开阔。
茶几上的绿植点缀,有一种恰到好处的美。背景墙用简约的几何线条,杜绝的繁杂,从而呈现出一种宁静的美感。
餐厅


餐厅是家中拥有烟火气最多的地方,反映家的生活气息。壁炉既隔开了客厅和餐厅,又为家中增加了温馨的氛围。开放式厨房,可以和家人一起烹饪,再享用一顿惬意的晚餐。
餐桌脚渐变色设计极具艺术感,桌上的精致摆件,让餐厅也变成了平时可以静坐下来思考,慢下来追溯内心的地方。
主卧室

卧室灰白设计,让主人更容易产生想睡觉的欲望,缓解紧张工作压力带来的疲惫感。侧边采用百叶窗,伸缩自如,可以根据室内外光线、主人的光线需求自由变换,透过百叶窗的投影,产生光影氛围感。
衣帽间

独立式衣帽间,宽敞明亮,现代感十足。增加化妆台,女主人可以边化妆,边思考今日穿搭。半透明衣柜方便拿取衣物,让梳洗打扮,充满精致生活的仪式感。
过道


过道楼梯转角充分利用起来,改造成了展示柜,放置收藏的摆件与书籍,上到二楼转角就能感受到的独特之处,成为家中别致的景观一角,实用与美观兼具。
多功能室

多功能区是集办公、收纳、健身为一体的。整个空间宽敞明亮,讲究功能实用性。办公桌背景木饰板的格栅削减了沉闷感,留出橱窗可以放喜欢的摆件和书籍,更能提高居家办公效率。
没有多余的装饰,营造出最简约、整洁干净的家居空间,让人回归到平静、感受最纯粹本真的生活。
以实补空,以虚成美,少即是多。
意式极简,是对于生活的一种态度,是一种简约不简单的极致美学。

摩橙设计作为鲁班装饰旗下专注于高品质家居生活和个性化空间设计的高端设计机构,由百余位平均从业年限8年以上资深设计师组成,团队成员多次斩获国内外重磅设计奖项,深受行业伙伴及客户朋友的赞誉。
"Design&More丨不只是设计”:专业的设计技能、国际化设计体系、创新型设计理念赋予空间深层次的艺术价值;私属化量身定制、全程专属管家服务给予业主更高境界的装修体验;
行业最高水准施工标准、金牌施工团队打造最坚实的家装壁垒,为高端华宅带来极致家居体验。